Whatsapp Us Contact Us
Deze gegevens zijn alleen voor informatieve doeleinden.
In voorverkoop
Start vanaf:   

AED828K

  • Voltooiingsdatum: mrt. 31, 2028
  • Warsan Fourth, Dubai

Overzicht
Type: Apartment
Ontwikkelaar: Amber
Prijs: AED828K
Beschrijving
Algemene projectfeitenZenith Residences van Amber Developments is een elegant woonproject gelegen in Warsan 4, een goed verbonden en snelgroeiende wijk in Dubai. Zenith ligt op slechts 12 minuten van het centrum van Dubai met directe toegang tot Emirates Road en biedt een naadloze mix van modern stedelijk gemak en een sereen leven in de buitenwijken. Als de hoogste toren in Warsan heeft het een opvallend architectonisch ontwerp dat een panoramisch uitzicht biedt op de skyline van Dubai, aangevuld met een levensstijl gericht op toegankelijkheid, comfort en gemeenschap.Het project omvat een zorgvuldig samengestelde selectie studio-, één- en tweeslaapkamerappartementen, elk zorgvuldig ontworpen met een eigen balkon, ruime indeling en moderne afwerking. De interieurs zijn ontworpen om natuurlijk licht, ruimte en functionaliteit te optimaliseren, met hoge plafonds en een neutraal kleurenschema dat persoonlijke stijlexpressie mogelijk maakt. Met een toewijding aan kwaliteit en leefbaarheid weerspiegelt elke unit in Zenith de toewijding van Amber, aantrekkelijk voor professionals, koppels en gezinnen die op zoek zijn naar verfijnde maar functionele woonruimtes.Zenith Residences biedt een scala aan eersteklas voorzieningen voor welzijn, vrije tijd en verjonging. Van het overloopzwembad en de jacuzzi op het dak tot de co-working lounge, gamezones, stoom-/saunafaciliteiten en yogastudio's: elke ruimte is zorgvuldig ontworpen om het dagelijks leven naar een hoger niveau te tillen. Gezinsvriendelijke voorzieningen zoals binnenspeeltuinen en kinderzwembaden vormen een aanvulling op buitenvoorzieningen zoals een barbecuezone, een zen-tuin en een joggingbaan. Bij Zenith overstijgt luxe louter design en omvat het de essentie van het dagelijks leven.Afwerking en materialenModerne merkafwerkingen met hoogwaardige Europese materialen.Keuken en apparatuurVolledig uitgeruste keukens.InrichtingGeen voorziening voor inrichting.Locatiebeschrijving en voordelenWarsan 4 belichaamt het hedendaagse leven met zorgvuldig vervaardigde woningen die tegemoetkomen aan de uiteenlopende behoeften van bewoners. Van chique appartementen tot ruime villa's, elk huis straalt precisie uit in ontwerp, met luxe afwerkingen en geavanceerde faciliteiten voor een luxueuze woonervaring.Naast de uitzonderlijke huisvestingsmogelijkheden biedt Warsan 4 een overvloed aan voorzieningen die gemakkelijk te bereiken zijn. Bewoners kunnen genieten van winkelen in nabijgelegen winkelcentra, dineren in diverse restaurants of ontspannen in weelderige parken en recreatiegebieden. Dankzij de strategische positionering zorgt Warsan 4 voor naadloze connectiviteit met belangrijke bestemmingen in Dubai, waardoor het een ideale keuze is voor zowel professionals als gezinnen.Terwijl de zon ondergaat boven de glanzende skyline van Dubai, bruist Warsan 4 van een levendige gemeenschapssfeer, waardoor bewoners een rustig toevluchtsoord krijgen te midden van de stedelijke drukte. Ontdek de charme van Warsan 4, waar stedelijke elegantie en ongeëvenaard comfort samenkomen in het hart van de internationale stad van Dubai.
Voorzieningen en kenmerken
Typical unit
Infinity-zwembad

Visualisatie van ontwikkelaar

Typical unit
Kinderzwembad

Afbeelding voor algemeen begrip

Typical unit
Speelgebied

Visualisatie van ontwikkelaar

Typical unit
Binnenyoga

Visualisatie van ontwikkelaar

Typical unit
Polyvalente zaal

Afbeelding voor algemeen begrip

Typical unit
Co-werkruimte

Visualisatie van ontwikkelaar

Typical unit
Joggingbaan

Visualisatie van ontwikkelaar

Typical unit
Binnenspeeltuin voor kinderen

Visualisatie van ontwikkelaar

Typical unit
Stoom & Sauna

Afbeelding voor algemeen begrip

Typical unit
Amberlounge

Afbeelding voor algemeen begrip

Typical unit
Zen-tuin

Visualisatie van ontwikkelaar

Typical unit
Cabana-dek

Visualisatie van ontwikkelaar

Typical unit
Kindersplashruimte

Afbeelding voor algemeen begrip

Typical unit
Ev-laadstation

Afbeelding voor algemeen begrip

Typical unit
Jacuzzi

Afbeelding voor algemeen begrip

Typical unit
IJsbad

Afbeelding voor algemeen begrip

Typical unit
Sportschool

Visualisatie van ontwikkelaar

Typical unit
BBQ-ruimte

Afbeelding voor algemeen begrip

Algemeen plan
img-general
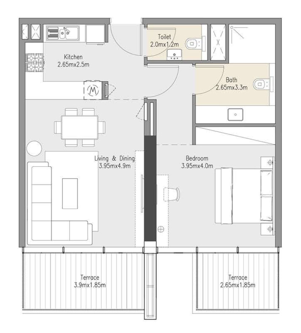
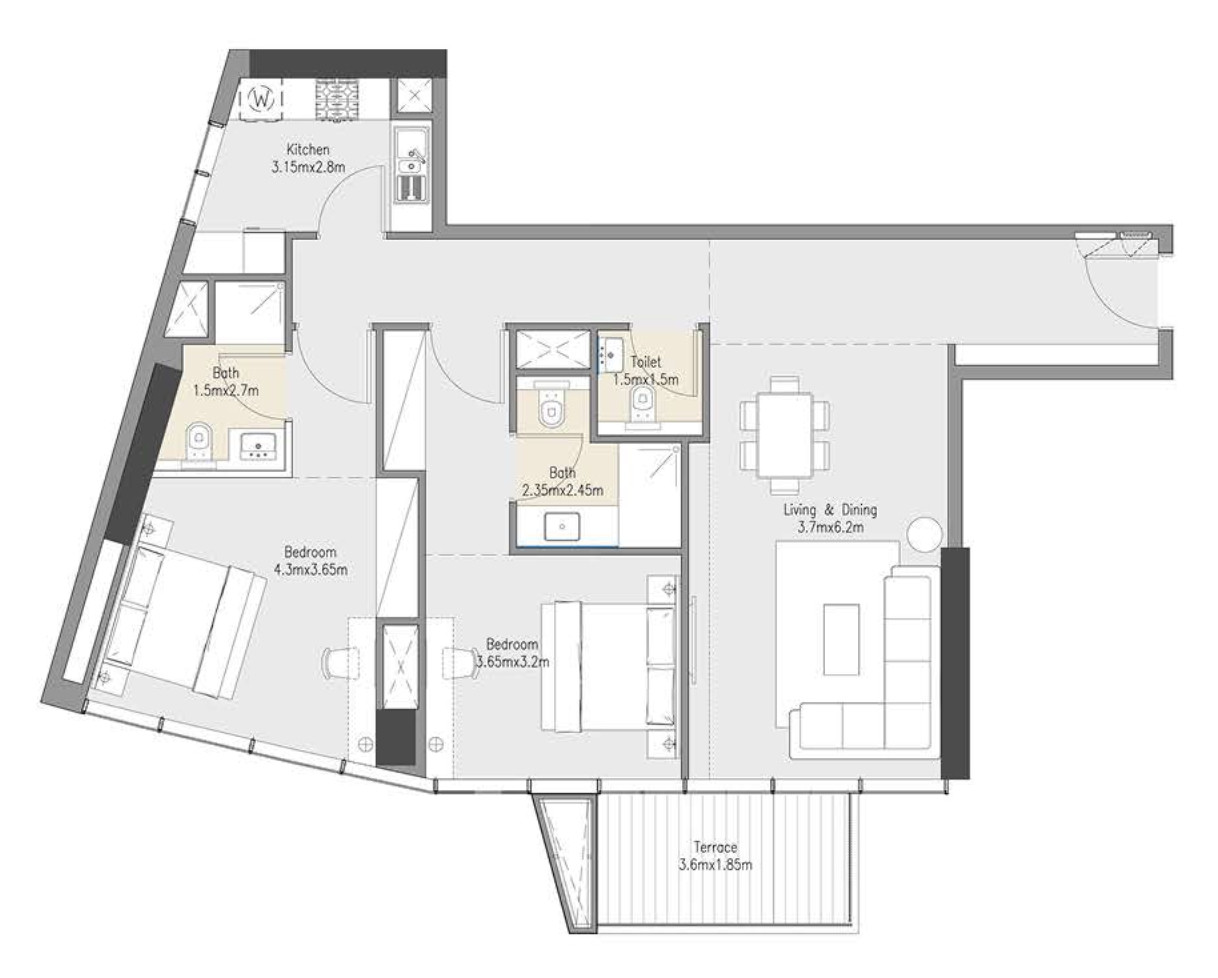
Unitstructuren
Typical unit
1Slaapkamers
AED828K - AED1.08M
820 sqft - 1077 sqft
Typical unit
2Slaapkamers
AED1.2M - AED1.72M
1179 sqft - 1715 sqft
Parkings
    Studio, 1BR, 2BR appartementen 1 parkeergelegenheid
Betalingsplannen
Betalingsplan 60/40
betalingsplan 60/40 (na overdracht voor 1&2br)
5%
On Booking
55%
On Construction
40%
On Handover
Bij Het Boeken
2 payments
5%
Aflevering
5%
DLD -vergoeding
4%
Bij De Bouw
28 payments
55%
Aflevering
5%
Aflevering
10%
Aflevering
1%
Aflevering
1%
Aflevering
1%
Aflevering
1%
Aflevering
1%
Aflevering
1%
Aflevering
1%
Aflevering
1%
Aflevering
6%
Aflevering
1%
Aflevering
1%
Aflevering
1%
Aflevering
1%
Aflevering
1%
Aflevering
1%
Aflevering
1%
Aflevering
1%
Aflevering
1%
Aflevering
1%
Aflevering
1%
Aflevering
6%
Aflevering
1%
Aflevering
1%
Aflevering
1%
Aflevering
1%
Aflevering
5%
Bij Overdracht
1 payment
40%
Aflevering
40%
5%
On Booking
55%
On Construction
5%
On Handover
35%
On Post Handover
Bij Het Boeken
2 payments
5%
Aflevering
5%
DLD -vergoeding
4%
Bij De Bouw
28 payments
55%
Aflevering
5%
Aflevering
10%
Aflevering
1%
Aflevering
1%
Aflevering
1%
Aflevering
1%
Aflevering
1%
Aflevering
1%
Aflevering
1%
Aflevering
1%
Aflevering
6%
Aflevering
1%
Aflevering
1%
Aflevering
1%
Aflevering
1%
Aflevering
1%
Aflevering
1%
Aflevering
1%
Aflevering
1%
Aflevering
1%
Aflevering
1%
Aflevering
1%
Aflevering
6%
Aflevering
1%
Aflevering
1%
Aflevering
1%
Aflevering
1%
Aflevering
5%
Bij Overdracht
1 payment
5%
Aflevering
5%
Op Post -overdracht
27 payments
35%
Aflevering
1%
Aflevering
1%
Aflevering
1%
Aflevering
1%
Aflevering
1%
Aflevering
1%
Aflevering
1%
Aflevering
1%
Aflevering
1%
Aflevering
5%
Aflevering
1%
Aflevering
1%
Aflevering
1%
Aflevering
1%
Aflevering
1%
Aflevering
1%
Aflevering
1%
Aflevering
1%
Aflevering
1%
Aflevering
1%
Aflevering
1%
Aflevering
5%
Aflevering
1%
Aflevering
1%
Aflevering
1%
Aflevering
1%
Aflevering
1%

Amber

Amber Developments is een in de VAE gevestigd vastgoedbedrijf dat zich richt op het creëren van hoogwaardige, designgerichte woongemeenschappen die moderne esthetiek combineren met praktisch leven. Met een toewijding aan klanttevredenheid en architectonische integriteit selecteert Amber zorgvuldig toplocaties in Dubai om naadloze connectiviteit en waarde op de lange termijn te garanderen. Elk project weerspiegelt de passie van het bedrijf voor het creëren van verhoogde woonervaringen, met aandacht voor detail in zowel het interieurontwerp als de structurele kwaliteit. Gedreven door een missie om haalbare luxe opnieuw te definiëren, integreert Amber Developments hoogwaardige materialen, doordachte plattegronden en levensstijlverbeterende voorzieningen in elk project. Hun team combineert lokale expertise met internationale normen en levert woningen op die zowel visueel opvallend als functioneel superieur zijn. Of het nu voor gezinnen, professionals of investeerders is, de projecten van Amber zijn gebouwd om het dagelijks leven in de meest dynamische buurten van Dubai te inspireren, te ondersteunen en te verbeteren.

Locatie
Plaatsen in de buurt
  • Burj Khalifa & The Dubai Fountain 23 Min
  • Dubai International Airport (DXB) 20 Min
  • Etisalat Tower 22 Min
  • Dragon Mart 10 Min
  • Museum of the Future 22 Min
  • Ras Al Khor Wildlife Sanctuary 13 Min
  • University of Birmingham Dubai 9 Min
Neem contact op met bureau